Descripción
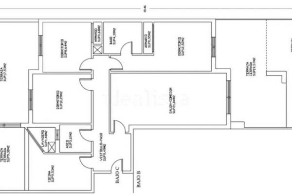
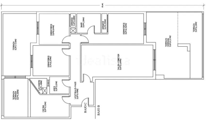
Vivienda de 147 metros cuadrados situada en la Urbanización Colinas de Procusán, Parque Victoria. Este conjunto residencial dispone de conserje, piscina, parque infantil, zonas verdes ajardinadas, etc. Piso en planta baja reformado proporcionando una ampliación y mejoras al piso. En todo el piso está instalado parqué de alta resistencia. Nada más entrar a la vivienda, nos encontramos un distribuidor que da acceso a las diferentes estancias de la casa. En la parte izquierda, se accede a una luminosa cocina en alto brillo blanco con una ampliación para zona de comedor. La cocina da paso a una terraza muy soleada a partir de las 12 de la mañana. Se han instalado ventanas oscilobatientes con cristales con protección solar. Junto a la cocina se encuentra un primer baño con plato de ducha y mampara instalada. A continuación de este, se encuentran dos amplios dormitorios ambos con ventanas oscilobatientes con cristales con protección solar. En la parte derecha del distribuidor se encuentra un espacioso salón y al final del pasillo el dormitorio principal con baño completo en suite, con ducha y mampara. Desde el salón y desde del dormitorio principal, se puede acceder a una amplia terraza cerrada. Desde esta terraza y dormitorio las vistas son a la zona del Rincón. Al tratarse de un piso totalmente EXTERIOR, proporciona gran cantidad de luz, independencia y tranquilidad. Se incluye sistema de aire acondicionado DAIKIN frío calor. La cocina queda totalmente amueblada. Se incluyen 2 plazas de GARAJE muy amplias y un TRASTERO situado junto a la plaza de parking
Características
Generales
Superficies
Equipamiento
Precio
415.000 €
2.823 €
Certificado energético
|
CALIFICACIÓN ENERGÉTICA
|
Consumo energía kW h / m2 año |
Emisiones CO2 kg CO2 / m2 año |
|---|---|---|
| A | ||
| B | ||
| C | ||
| D | ||
| E | ||
| F | ||
| G |
Situación y Entorno
La Cala del Moral














